|
|
|
| ¹°°ÇÁ¤º¸ Çٽɺ¸±â |
Ȩ > °æ¸ÅÁ¾ÇÕ°Ë»ö > ¹°°ÇÁ¤º¸ Çٽɺ¸±â |
|
|
| 2025Ÿ°æ52408 °æ¸Å»ç°ÇÀÇ ´Ù¼¼´ë(ºô¶ó) ¹°°Ç¿¡ °üÇÑ »ó¼¼ Á¤º¸ÀÔ´Ï´Ù. |
|
| ¼ÒÀçÁö |
°æ±âµµ ±¤Áֽà ½ÅÇöµ¿ 135-56 ÇÞºû¸¶À»13 3Ãþ402È£
|
|
| »ç°Ç¹øÈ£ |
2025 Ÿ°æ 52408 |
¹°°Ç¹øÈ£ |
1
|
¹°°Ç¿ëµµ |
´Ù¼¼´ë(ºô¶ó) |
| °¨Á¤Æò°¡¾× |
300,000,000¿ø |
°æ¸Å´ë»ó |
ÅäÁö ¹× °Ç¹°Àϰý ¸Å°¢ |
ÁøÇà»óÅ |
½Å°Ç |
| ÃÖÀúÀÔÂû°¡ |
(100%) 300,000,000¿ø
|
°Ç¹°¸éÀû |
73.97§³(22.38Æò) |
ÀÔÂû±âÀÏ |
2026.04.20(¿ù) 10:00
(ÀÔÂû 14ÀÏÀü)
|
| ÀÔÂûº¸Áõ±Ý |
(10%) 30,000,000¿ø |
ÅäÁö¸éÀû |
80.00§³(24.20Æò)
|
À¯ÂûȽ¼ö |
0ȸ |
| ÀÔÂû¹ý¿ø |
¼ö¿øÁö¹æ¹ý¿ø ¼º³²Áö¿ø |
°æ¸Å¹æ¹ý |
ºÎµ¿»ê°Á¦°æ¸Å |
¹°°ÇÁ¶È¸¼ö |
¿À´Ã: 3ȸ [´©Àû: 3ȸ]
|
| ¸»¼Ò±âÁØ | |
|
|
|
|
|
|
|
|
|
|
°æ¸Å´ë»ó ¸ñ·Ï
|
|
| ±¸ºÐ |
¸ñ·Ï |
ÁÖ¼Ò |
±¸Á¶/¿ëµµ/´ëÁö±Ç |
ºñ°í |
´ëÁö±Ç
|
1 |
½ÅÇöµ¿ 135-56 |
661ºÐÀÇ 80 |
80§³ (24.20Æò)
|
°Ç¹°
|
1 |
½ÅÇöµ¿ 135-56 |
3Ãþ402È£ ö±ÙÄÜÅ©¸®Æ®±¸Á¶ |
73.97§³ (22.38Æò)
|
|
|
|
2026-04-20
ÁøÇà
|
(100%)
300,000,000¿ø
|
|
|
|
|
|
°¨Á¤Æò°¡¼ ¿ä¾à |
|
[À§Ä¡/ÁÖÀ§È¯°æ]
º»°ÇÀº °æ±âµµ ±¤Áֽà ½ÅÇöµ¿ ¼ÒÀç ""½ÅÇö1¸®¸¶À»È¸°ü"" ºÏÃø ±Ù°Å¸®¿¡ À§Ä¡Çϸç, ºÎ±ÙÀº ´Ù¼¼´ëÁÖÅÃ,
´Üµ¶ÁÖÅÃ, ÀÓ¾ß µîÀÌ È¥ÀçµÈ Áö¿ªÀ¸·Î¼ °øµ¿ÁÖ°ÅÁö·Î¼ÀÇ ÁÖÀ§È¯°æ º¸ÅëÀÓ.
[±³Åë»óȲ]
º»°Ç±îÁö Â÷·® Á¢±Ù °¡´ÉÇϸç ÀαÙÀÇ °£¼±µµ·Îº¯¿¡ ´ëÁß±³ÅëÆíÀÎ ³ë¼±¹ö½ºÁ¤·ùÀåÀÌ ¼ÒÀçÇÏ¿© ´ëÁß±³
Åë»çÁ¤ º¸ÅëÀÓ.
[°Ç¹°±¸Á¶]
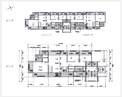
2016. 05. 18. »ç¿ë½ÂÀÎµÈ Ã¶±ÙÄÜÅ©¸®Æ®±¸Á¶ (ö±Ù)ÄÜÅ©¸®Æ®ÁöºØ 4Ãþ ´Ù¼¼´ëÁÖÅà °Ç¹° Áß 3Ãþ402È£
·Î¼,
¿Üº®: º®µ¹ ¹× ¼®ÀçºÙÀÓ ¸¶°¨ µî
³»º®: ½Ã¸àÆ®¸ôÅ» À§ º®ÁöÄ¡Àå ¹× ÀϺΠŸÀϺÙÀÓ ¸¶°¨ µî
âȣ: »õ½ÃâȣÀÓ.
[ÀÌ¿ë»óÅÂ]
´Ù¼¼´ëÁÖÅÃÀ¸·Î ÀÌ¿ë ÁßÀ̸ç ÀÚ¼¼ÇÑ ³»ºÎ±¸Á¶´Â º°ÁöÀÇ ""³»ºÎ±¸Á¶µµ"" Âü°í ¹Ù¶÷.
[¼³ºñ³»¿ª]
À§»ý ¹× ±Þ¡¤¹è¼ö½Ã¼³, ½Â°±â¼³ºñ, µµ½Ã°¡½º ³¹æ¼³ºñ µî °®Ãß¾úÀ½.
[ÅäÁöÇü»ó/ÀÌ¿ë»óÅÂ]
¿Ï°æ»ç Áö´ëÀÇ ÀÚüÁö¹Ý ÆòźÇÑ ´ëü·Î »ç´Ù¸®ÇüÅÂÀÇ ÅäÁö·Î¼, ´Ù¼¼´ëÁÖÅðǺÎÁö·Î ÀÌ¿ë ÁßÀÓ.
7)ÀÎÁ¢ µµ·Î»óŵî
ºÏµ¿ÃøÀ¸·Î ³ëÆø ¾à 6mÀÇ Æ÷Àåµµ·Î¿¡ Á¢ÇÔ.
[ÅäÁöÀÌ¿ë°èȹ]
°èȹ°ü¸®Áö¿ª(°èȹ°ü¸®), ¼ºÀå°ü¸®°èȹ±¸¿ª(¼ºÀå°ü¸®Áö¿ª(ÁÖ°ÅÇü)),°¡Ãà»çÀ°Á¦Çѱ¸¿ª(ÀϺÎÁ¦Çѱ¸¿ª)
£¼°¡ÃàºÐ´¢ÀÇ °ü¸® ¹× À̿뿡 °üÇÑ ¹ý·ü£¾, ¹èÃâ½Ã¼³¼³Ä¡Á¦ÇÑÁö¿ª£¼¹°È¯°æº¸Àü¹ý£¾, ÀÚ¿¬º¸Àü±Ç¿ª£¼¼öµµ
±ÇÁ¤ºñ°èȹ¹ý£¾, Ưº°´ëÃ¥Áö¿ª£¼È¯°æÁ¤Ã¥±âº»¹ý£¾.
[°øºÎ¿ÍÀÇ Â÷ÀÌ]
ÇØ´ç»çÇ× ¾øÀ½.
[Âü°í»çÇ×]
- ÀÓ´ë°ü°è: ¹Ì»óÀÓ.
- ±âŸ: ÇØ´ç»çÇ× ¾øÀ½. |
|
|
|
 |
ÀÓÂ÷³»¿ª |
[¹è´ç¿ä±¸Á¾±âÀÏ : 2025/08/25] |
|
|
| ÀÓÂ÷ÀÎ |
Á¡À¯°ü°è |
ÀüÀÔÀÏÀÚ |
È®Á¤ÀÏÀÚ |
¹è´ç¿ä±¸ÀÏ |
º¸Áõ±Ý/Â÷ÀÓ |
´ëÇ׿ä°Ç |
ºñ°í |
| ¸Å°¢±âÀÏ 7ÀÏÀü¿¡ °ø°íµÇ¿À´Ï È®ÀÎÇϽñ⠹ٶø´Ï´Ù. |
|
|
|
 |
¹ý¿ø ¹°°ÇÀÚ·á ¿ä¾à |
|
|
|
|
| ¼Ò¸êµÇÁö ¾Ê´Â µî±âºÎ±Ç¸® |
|
| ¼³Á¤µÈ °ÍÀ¸·Î º¸´Â Áö»ó±Ç |
|
| ¹ý¿øÀÚ·á Æ¯ÀÌ»çÇ× |
|
| ¿©ÀÇÁÖ°æ¸Å Á¶¾ð ÇѸ¶µð |
ÀÌ ºÎµ¿»êÀÇ ÀÔÂû¹ý¿øÀº ¼ö¿øÁö¹æ¹ý¿ø ¼º³²Áö¿øÀÔ´Ï´Ù.
ÀÔÂûÀÏÀº 2026-04-20ÀÔ´Ï´Ù.
ÀÔÂû½Ã°£Àº 10:00~11:10ÀÔ´Ï´Ù. ÀÌ ¹ý¿ø¿¡´Â ¿ì¸®ÀºÇàÀÌ ÀÔÁ¡Çϰí ÀÖ½À´Ï´Ù.
|
|
|
| Åë°è±â°£ |
³«Âû¹°°Ç¼ö |
Æò±Õ°¨Á¤°¡ |
Æò±Õ³«Âû°¡ |
³«Âû°¡À² |
À¯ÂûȽ¼ö |
| 3°³¿ù |
48°Ç |
213,133,333¿ø |
135,433,056¿ø |
65% |
1.8ȸ |
| 6°³¿ù |
99°Ç |
231,286,869¿ø |
148,424,720¿ø |
66% |
1.8ȸ |
| 12°³¿ù |
140°Ç |
235,674,286¿ø |
154,822,088¿ø |
67% |
1.7ȸ |
|
|
|
|
|
|
|
 |
ÀαÙÁö¿ª ÃÖ±Ù ³«Âû»ç·Ê
|
|
|
 |
|
|
[¾È³»] Ȥ½Ã ÀÌ¿ëÀÌ ºÒÆíÇϽðųª »èÁ¦ÇÒ ³»¿ëÀÌ ÀÖ´Ù¸é ÃÖ´ëÇÑ ³ë·ÂÇØ¼ °³¼±ÇØ ³ª°¡µµ·Ï ÇϰڽÀ´Ï´Ù.
 |
|
ÀÌ »çÀÌÆ®¿¡¼ Á¦°øµÇ´Â ºÎµ¿»ê°æ¸Å ÀÚ·á´Â ¹ý¿ø °æ¸Å°è¿¡¼ ó¸®Çϰí ÀÖ´Â ½ÇÁ¦ ¹°°ÇÀÇ Á¤º¸¿Í ÀÏÄ¡ÇÏÁö ¾ÊÀ» ¼öµµ ÀÖ½À´Ï´Ù.
´ç»ç´Â º» ÀÚ·á¿¡ °üÇÏ¿© Á¤½Ä ÄÁ¼³ÆÃ ÀÇ·Ú°¡ ¾Æ´Ñ ÀÌ»ó ¾î¶°ÇÑ º¸Áõµµ ÇÏÁö ¾ÊÀ¸¸ç ¹ýÀû Ã¥ÀÓÀ» ÁöÁö ¾Ê½À´Ï´Ù.
ÀÔÂûÇϱâ Àü¿¡ ²Ä²ÄÈ÷ ¹ý¿ø¿¡ ºñÄ¡µÈ ¸Å°¢¹°°Ç¸í¼¼¼ ¹× ±âŸ °øºÎ¸¦ ÀçÈ®ÀÎÇϽðí ÀÔÂû¿¡ Âü°¡ÇÏ½Ã±æ ¹Ù¶ø´Ï´Ù. |
|
|
|
|
|