|
|
|
| ¹°°ÇÁ¤º¸ Çٽɺ¸±â |
Ȩ > °æ¸ÅÁ¾ÇÕ°Ë»ö > ¹°°ÇÁ¤º¸ Çٽɺ¸±â |
|
|
| 2025Ÿ°æ11777 °æ¸Å»ç°ÇÀÇ ¾ÆÆÄÆ® ¹°°Ç¿¡ °üÇÑ »ó¼¼ Á¤º¸ÀÔ´Ï´Ù. |
|
| ¼ÒÀçÁö |
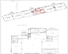
¿ï»ê±¤¿ª½Ã ¿ïÁÖ±º ¹ü¼À¾ ±¸¿µ¸® 208 dz°æÃ¤ 103µ¿ 15Ãþ1505È£
|
|
| »ç°Ç¹øÈ£ |
2025 Ÿ°æ 11777 |
¹°°Ç¹øÈ£ |
1
|
¹°°Ç¿ëµµ |
¾ÆÆÄÆ® |
| °¨Á¤Æò°¡¾× |
421,000,000¿ø |
°æ¸Å´ë»ó |
ÅäÁö ¹× °Ç¹°Àϰý ¸Å°¢ |
ÁøÇà»óÅ |
½Å°Ç |
| ÃÖÀúÀÔÂû°¡ |
(100%) 421,000,000¿ø
|
°Ç¹°¸éÀû |
84.90§³(25.68Æò) |
ÀÔÂû±âÀÏ |
2026.04.21(È) 10:00
(ÀÔÂû 13ÀÏÀü)
|
| ÀÔÂûº¸Áõ±Ý |
(10%) 42,100,000¿ø |
ÅäÁö¸éÀû |
53.52§³(16.19Æò)
|
À¯ÂûȽ¼ö |
0ȸ |
| ÀÔÂû¹ý¿ø |
¿ï»êÁö¹æ¹ý¿ø |
°æ¸Å¹æ¹ý |
ºÎµ¿»êÀÓÀǰæ¸Å |
¹°°ÇÁ¶È¸¼ö |
¿À´Ã: 2ȸ [´©Àû: 10ȸ]
|
| ¸»¼Ò±âÁØ | |
|
|
|
|
|
|
|
|
|
|
°æ¸Å´ë»ó ¸ñ·Ï
|
|
| ±¸ºÐ |
¸ñ·Ï |
ÁÖ¼Ò |
±¸Á¶/¿ëµµ/´ëÁö±Ç |
ºñ°í |
´ëÁö±Ç
|
1 |
±¸¿µ¸® 208 |
21420ºÐÀÇ 53.5198 |
53.5198§³ (16.19Æò)
|
°Ç¹°
|
1 |
±¸¿µ¸® 208 |
103µ¿ 15Ãþ1505È£ ö±ÙÄÜÅ©¸®Æ®±¸Á¶ |
84.8999§³ (25.68Æò)
|
|
|
|
2026-04-21
ÁøÇà
|
(100%)
421,000,000¿ø
|
|
|
|
|
|
°¨Á¤Æò°¡¼ ¿ä¾à |
|
[À§Ä¡/ÁÖÀ§È¯°æ]
¿ï»ê±¤¿ª½Ã ¿ïÁÖ±º ¹ü¼À¾ ¿ïÁÖ ÁߺÎû¼Ò³â¼ö·Ã°ü ºÏÃø Àαٿ¡ ¼ÒÀçÇϸç ÁÖº¯Àº ÁÖ°ÅÁö´ë·Î
°³¹ßµÈ ±¸¿µÅÃÁöÁö±¸·Î ¾ÆÆÄÆ®, ±Ù¸°»ýȰ½Ã¼³, ´Üµ¶ÁÖÅÃ, °ø°ø½Ã¼³ µîÀ¸·Î Çü¼ºµÇ¾î ÀÖÀ½.
[±³Åë»óȲ]
Â÷·®Á¢±Ù °¡´ÉÇϰí Àαٿ¡ ¹ö½ºÁ¤·ùÀåÀÌ ¼ÒÀçÇÔ.
[°Ç¹°±¸Á¶]
ö±ÙÄÜÅ©¸®Æ®±¸Á¶ (ö±Ù)ÄÜÅ©¸®Æ®ÁöºØ 20Ãþ°Ç³» 15ÃþÀ¸·Î
¿Üº® : ¼®Àç,ÆäÀÎÆÃ
âȣ : »þ½Ã
³»ºÎ : º®Áö µî.
[ÀÌ¿ë»óÅÂ]
¾ÆÆÄÆ®.
[¼³ºñ³»¿ª]
À§»ý ¹× ±Þ¹è¼ö, ½Â°±â, ÈÀç°ü¸®¼³ºñ, µµ½Ã°¡½º µî.
[ÅäÁöÇü»ó/ÀÌ¿ë»óÅÂ]
´ëü·Î ¼ÇÏÇâ °æ»çÁö´ë¿¡ Á¶¼ºµÈ ¹æÇüÀ¯»çÁöÀÌ¸ç ¾ÆÆÄÆ®´ÜÁö·Î ÀÌ¿ëÁßÀÓ.
7)ÀÎÁ¢ µµ·Î»óŵî
ºÏÃø ¿Õº¹ 4Â÷·Î(¾ÆÆÄÆ®´ÜÁö ÁøÃâÀÔ·Î º°µµ ¼³Ä¡)¿¡¼ ¾ÆÆÄÆ®´ÜÁö³» ÁøÃâÀÔ ¿ëÀÌÇÔ.
[ÅäÁöÀÌ¿ë°èȹ]
Á¦3Á¾ÀϹÝÁÖ°ÅÁö¿ª, Áö±¸´ÜÀ§°èȹ±¸¿ª(±¸¿µÅÃÁöÁö±¸), ¼Ò·Î3·ù(Æø 8m ¹Ì¸¸)(º¸Á¶°£¼±µµ·Î)(Á¢ÇÕ), Áß·Î1·ù(Æø 20m~25m)(º¸Á¶°£¼±µµ·Î)(Á¢ÇÕ), Áß·Î2·ù(Æø 15m~20m)(Á¢ÇÕ) °¡Ãà»çÀ°Á¦Çѱ¸¿ª(2025-01-16)(ÃàÁ¾º° °Å¸®Á¦ÇÑ 250m ¹Ì¸¸ ÃàÁ¾)£¼°¡ÃàºÐ´¢ÀÇ °ü¸® ¹× À̿뿡 °üÇÑ ¹ý·ü£¾, ÅÃÁö°³¹ßÁö±¸£¼ÅÃÁö°³¹ßÃËÁø¹ý£¾
[°øºÎ¿ÍÀÇ Â÷ÀÌ]
¾øÀ½.
[Âü°í»çÇ×]
ÀÓ´ë°ü°è ¹Ì»óÀÓ.
|
|
|
°ÇÃ๰ÇöȲ |
|
|
|
| ¼ÒÀçÁö |
¿ï»ê±¤¿ª½Ã ¿ïÁÖ±º ¹ü¼À¾ ±¸¿µ¸® 208¹øÁö |
| ´ëÁö¸éÀû |
|
¿¬¸éÀû |
9488.5857§³(2875.33Æò) |
ÁÖ¿ëµµ |
°øµ¿ÁÖÅà |
| °ÇÃà¸éÀû |
629.0581§³(190.62Æò) |
¿ëÀû·ü»êÁ¤¿¬¸éÀû |
9488.5857§³(2875.33Æò) |
Âø°øÀÏÀÚ |
2005.07.01 |
| °ÇÆóÀ² |
|
¿ëÀû·ü |
|
»ç¿ë½ÂÀÎÀÏÀÚ |
2007.09.17 |
| Áö»óÃþ¼ö |
20Ãþ |
ÁöÇÏÃþ¼ö |
|
±¸Á¶ |
ö±ÙÄÜÅ©¸®Æ®±¸Á¶ |
°ÇÃ๰Ãþº°ÇöȲ [º¸±â]| Ãþº° | ±¸Á¶ | ¿ëµµ | ¸éÀû | | 1Ãþ | ö±ÙÄÜÅ©¸®Æ®±¸Á¶ | ¾ÆÆÄÆ® | 535.4974§³ (162.27Æò) | | 1Ãþ | ö±ÙÄÜÅ©¸®Æ®±¸Á¶ | Á¦2Á¾±Ù¸°»ýȰ½Ã¼³ | 173.25§³ (52.5Æò) | | 1Ãþ | ö±ÙÄÜÅ©¸®Æ®±¸Á¶ | °ü¸®»ç¹«¼Ò,°æ·Î´ç | 175.5809§³ (53.21Æò) | | 1Ãþ | ö±ÙÄÜÅ©¸®Æ®±¸Á¶ | ¾ÆÆÄÆ® | 336.5094§³ (101.97Æò) | | 2Ãþ | ö±ÙÄÜÅ©¸®Æ®±¸Á¶ | ¾ÆÆÄÆ® | 593.3363§³ (179.8Æò) | | 2Ãþ | ö±ÙÄÜÅ©¸®Æ®±¸Á¶ | Á¦1Á¾±Ù¸°»ýȰ½Ã¼³(Áö¿ª¾Æµ¿¼¾ÅÍ) | 173.25§³ (52.5Æò) | | 2Ãþ | ö±ÙÄÜÅ©¸®Æ®±¸Á¶ | Áֹΰøµ¿½Ã¼³,¿¥µð¿¡ÇÁ½Ç | 140.8261§³ (42.67Æò) | | 2Ãþ | ö±ÙÄÜÅ©¸®Æ®±¸Á¶ | ¾ÆÆÄÆ® | 430.8075§³ (130.55Æò) | | 3Ãþ | ö±ÙÄÜÅ©¸®Æ®±¸Á¶ | ¾ÆÆÄÆ® | 430.8075§³ (130.55Æò) | | 3Ãþ | ö±ÙÄÜÅ©¸®Æ®±¸Á¶ | ¾ÆÆÄÆ® | 593.3363§³ (179.8Æò) | | 4Ãþ | ö±ÙÄÜÅ©¸®Æ®±¸Á¶ | ¾ÆÆÄÆ® | 430.8075§³ (130.55Æò) | | 4Ãþ | ö±ÙÄÜÅ©¸®Æ®±¸Á¶ | ¾ÆÆÄÆ® | 593.3363§³ (179.8Æò) | | 5Ãþ | ö±ÙÄÜÅ©¸®Æ®±¸Á¶ | ¾ÆÆÄÆ® | 430.8075§³ (130.55Æò) | | 5Ãþ | ö±ÙÄÜÅ©¸®Æ®±¸Á¶ | ¾ÆÆÄÆ® | 585.7763§³ (177.51Æò) | | 6Ãþ | ö±ÙÄÜÅ©¸®Æ®±¸Á¶ | ¾ÆÆÄÆ® | 430.8075§³ (130.55Æò) | | 6Ãþ | ö±ÙÄÜÅ©¸®Æ®±¸Á¶ | ¾ÆÆÄÆ® | 585.7763§³ (177.51Æò) | | 7Ãþ | ö±ÙÄÜÅ©¸®Æ®±¸Á¶ | ¾ÆÆÄÆ® | 585.7763§³ (177.51Æò) | | 8Ãþ | ö±ÙÄÜÅ©¸®Æ®±¸Á¶ | ¾ÆÆÄÆ® | 585.7763§³ (177.51Æò) | | 9Ãþ | ö±ÙÄÜÅ©¸®Æ®±¸Á¶ | ¾ÆÆÄÆ® | 585.7763§³ (177.51Æò) | | 10Ãþ | ö±ÙÄÜÅ©¸®Æ®±¸Á¶ | ¾ÆÆÄÆ® | 585.7763§³ (177.51Æò) | | 11Ãþ | ö±ÙÄÜÅ©¸®Æ®±¸Á¶ | ¾ÆÆÄÆ® | 585.7763§³ (177.51Æò) | | 12Ãþ | ö±ÙÄÜÅ©¸®Æ®±¸Á¶ | ¾ÆÆÄÆ® | 585.7763§³ (177.51Æò) | | 13Ãþ | ö±ÙÄÜÅ©¸®Æ®±¸Á¶ | ¾ÆÆÄÆ® | 585.7763§³ (177.51Æò) | | 14Ãþ | ö±ÙÄÜÅ©¸®Æ®±¸Á¶ | ¾ÆÆÄÆ® | 585.7763§³ (177.51Æò) | | 15Ãþ | ö±ÙÄÜÅ©¸®Æ®±¸Á¶ | ¾ÆÆÄÆ® | 585.7763§³ (177.51Æò) | | 16Ãþ | ö±ÙÄÜÅ©¸®Æ®±¸Á¶ | ¾ÆÆÄÆ® | 585.7763§³ (177.51Æò) | | 17Ãþ | ö±ÙÄÜÅ©¸®Æ®±¸Á¶ | ¾ÆÆÄÆ® | 585.7763§³ (177.51Æò) | | 18Ãþ | ö±ÙÄÜÅ©¸®Æ®±¸Á¶ | ¾ÆÆÄÆ® | 585.7763§³ (177.51Æò) | | 19Ãþ | ö±ÙÄÜÅ©¸®Æ®±¸Á¶ | ¾ÆÆÄÆ® | 585.7763§³ (177.51Æò) | | 20Ãþ | ö±ÙÄÜÅ©¸®Æ®±¸Á¶ | ¾ÆÆÄÆ® | 585.7763§³ (177.51Æò) |
|
|
|
|
|
 |
ÀÓÂ÷³»¿ª |
[¹è´ç¿ä±¸Á¾±âÀÏ : 2025/08/04] |
|
|
| ÀÓÂ÷ÀÎ |
Á¡À¯°ü°è |
ÀüÀÔÀÏÀÚ |
È®Á¤ÀÏÀÚ |
¹è´ç¿ä±¸ÀÏ |
º¸Áõ±Ý/Â÷ÀÓ |
´ëÇ׿ä°Ç |
ºñ°í |
| ¸Å°¢±âÀÏ 7ÀÏÀü¿¡ °ø°íµÇ¿À´Ï È®ÀÎÇϽñ⠹ٶø´Ï´Ù. |
|
|
|
 |
¹ý¿ø ¹°°ÇÀÚ·á ¿ä¾à |
|
|
|
|
| ¼Ò¸êµÇÁö ¾Ê´Â µî±âºÎ±Ç¸® |
|
| ¼³Á¤µÈ °ÍÀ¸·Î º¸´Â Áö»ó±Ç |
|
| ¹ý¿øÀÚ·á Æ¯ÀÌ»çÇ× |
[ÁÖ¿ä ¹®°Ç Á¢¼ö ³»¿ª]
[2025.10.16] ±âŸ ÁÖOOO OOOOOOOOOO ä±ÇÀÚº¯°æ½Å°í¼ Á¦Ãâ
|
[ºÎµ¿»ê ÇöȲÁ¶»ç¼ ºñ°í¶õ]
º»°Ç ºÎµ¿»êÀº ¿ï»ê ¿ïÁÖ±º ¹ü¼À¾ |
|
| ¿©ÀÇÁÖ°æ¸Å Á¶¾ð ÇѸ¶µð |
ÀÌ ºÎµ¿»êÀÇ ÀÔÂû¹ý¿øÀº ¿ï»êÁö¹æ¹ý¿øÀÔ´Ï´Ù.
ÀÔÂûÀÏÀº 2026-04-21ÀÔ´Ï´Ù.
ÀÔÂû½Ã°£Àº 10:00~11:30ÀÔ´Ï´Ù. ÀÌ ¹ý¿ø¿¡´Â ½ÅÇÑÀºÇà,°æ³²ÀºÇàÀÌ ÀÔÁ¡Çϰí ÀÖ½À´Ï´Ù.
|
|
|
| Åë°è±â°£ |
³«Âû¹°°Ç¼ö |
Æò±Õ°¨Á¤°¡ |
Æò±Õ³«Âû°¡ |
³«Âû°¡À² |
À¯ÂûȽ¼ö |
| 3°³¿ù |
13°Ç |
184,000,000¿ø |
153,620,063¿ø |
81% |
1.1ȸ |
| 6°³¿ù |
22°Ç |
167,545,455¿ø |
138,988,446¿ø |
81% |
1.1ȸ |
| 12°³¿ù |
57°Ç |
175,403,509¿ø |
148,329,587¿ø |
83% |
1.1ȸ |
|
|
|
|
|
|
|
 |
ÀαÙÁö¿ª ÃÖ±Ù ³«Âû»ç·Ê
|
|
|
 |
|
|
[¾È³»] Ȥ½Ã ÀÌ¿ëÀÌ ºÒÆíÇϽðųª »èÁ¦ÇÒ ³»¿ëÀÌ ÀÖ´Ù¸é ÃÖ´ëÇÑ ³ë·ÂÇØ¼ °³¼±ÇØ ³ª°¡µµ·Ï ÇϰڽÀ´Ï´Ù.
 |
|
ÀÌ »çÀÌÆ®¿¡¼ Á¦°øµÇ´Â ºÎµ¿»ê°æ¸Å ÀÚ·á´Â ¹ý¿ø °æ¸Å°è¿¡¼ ó¸®Çϰí ÀÖ´Â ½ÇÁ¦ ¹°°ÇÀÇ Á¤º¸¿Í ÀÏÄ¡ÇÏÁö ¾ÊÀ» ¼öµµ ÀÖ½À´Ï´Ù.
´ç»ç´Â º» ÀÚ·á¿¡ °üÇÏ¿© Á¤½Ä ÄÁ¼³ÆÃ ÀÇ·Ú°¡ ¾Æ´Ñ ÀÌ»ó ¾î¶°ÇÑ º¸Áõµµ ÇÏÁö ¾ÊÀ¸¸ç ¹ýÀû Ã¥ÀÓÀ» ÁöÁö ¾Ê½À´Ï´Ù.
ÀÔÂûÇϱâ Àü¿¡ ²Ä²ÄÈ÷ ¹ý¿ø¿¡ ºñÄ¡µÈ ¸Å°¢¹°°Ç¸í¼¼¼ ¹× ±âŸ °øºÎ¸¦ ÀçÈ®ÀÎÇϽðí ÀÔÂû¿¡ Âü°¡ÇÏ½Ã±æ ¹Ù¶ø´Ï´Ù. |
|
|
|
|
|