|
|
|
| ¹°°ÇÁ¤º¸ Çٽɺ¸±â |
Ȩ > °æ¸ÅÁ¾ÇÕ°Ë»ö > ¹°°ÇÁ¤º¸ Çٽɺ¸±â |
|
|
| 2025Ÿ°æ510131 °æ¸Å»ç°ÇÀÇ ¿ÀÇǽºÅÚ ¹°°Ç¿¡ °üÇÑ »ó¼¼ Á¤º¸ÀÔ´Ï´Ù. |
|
| ¼ÒÀçÁö |
ÀÎõ±¤¿ª½Ã ¹ÌÃßȦ±¸ ¼þÀǵ¿ 185-38 ¾Æ¸§Å¸¿ö 9Ãþ902È£
|
|
| »ç°Ç¹øÈ£ |
2025 Ÿ°æ 510131 |
¹°°Ç¹øÈ£ |
1
|
¹°°Ç¿ëµµ |
¿ÀÇǽºÅÚ |
| °¨Á¤Æò°¡¾× |
235,000,000¿ø |
°æ¸Å´ë»ó |
ÅäÁö ¹× °Ç¹°Àϰý ¸Å°¢ |
ÁøÇà»óÅ |
½Å°Ç |
| ÃÖÀúÀÔÂû°¡ |
(100%) 235,000,000¿ø
|
°Ç¹°¸éÀû |
59.83§³(18.10Æò) |
ÀÔÂû±âÀÏ |
2026.04.21(È) 10:00
(ÀÔÂû 10ÀÏÀü)
|
| ÀÔÂûº¸Áõ±Ý |
(10%) 23,500,000¿ø |
ÅäÁö¸éÀû |
9.49§³(2.87Æò)
|
À¯ÂûȽ¼ö |
0ȸ |
| ÀÔÂû¹ý¿ø |
ÀÎõÁö¹æ¹ý¿ø |
°æ¸Å¹æ¹ý |
ºÎµ¿»ê°Á¦°æ¸Å |
¹°°ÇÁ¶È¸¼ö |
¿À´Ã: 1ȸ [´©Àû: 53ȸ]
|
| ¸»¼Ò±âÁØ | ÃÖ¼±¼øÀ§ ¼³Á¤ : 2023.12.27. °¡¾Ð·ù ¼³Á¤
|
|
|
|
|
|
|
|
|
|
|
°æ¸Å´ë»ó ¸ñ·Ï
|
|
| ±¸ºÐ |
¸ñ·Ï |
ÁÖ¼Ò |
±¸Á¶/¿ëµµ/´ëÁö±Ç |
ºñ°í |
´ëÁö±Ç
|
1 |
¼þÀǵ¿ 185-38 |
341ºÐÀÇ 9.49 |
9.49§³ (2.87Æò)
|
°Ç¹°
|
1 |
¼þÀǵ¿ 185-38 |
9Ãþ902È£ ö±ÙÄÜÅ©¸®Æ®±¸Á¶ |
59.83§³ (18.10Æò)
|
|
|
|
2026-04-21
ÁøÇà
|
(100%)
235,000,000¿ø
|
|
|
|
|
|
°¨Á¤Æò°¡¼ ¿ä¾à |
|
[À§Ä¡/ÁÖÀ§È¯°æ]
º»°ÇÀº ÀÎõ±¤¿ª½Ã ¹ÌÃßȦ±¸ ¼þÀǵ¿ ""¹ÌÃßȦ±¸Ã»"" ³²Ãø Àαٿ¡ À§Ä¡Çϸç ÁÖÀ§´Â ¿ÀÇǽºÅÚ, ¾ÆÆÄÆ®, ´Ù¼¼´ëÁÖÅÃ, ±Ù¸°»ýȰ½Ã¼³ µîÀÌ ¼ÒÀçÇÕ´Ï´Ù.
[±³Åë»óȲ]
º»°Ç±îÁö Â÷·®Á¢±ÙÀÌ °¡´ÉÇϸç Àαٿ¡ ¹ö½ºÁ¤·ùÀå µîÀÌ ¼ÒÀçÇÕ´Ï´Ù.
[°Ç¹°±¸Á¶]
ö±ÙÄÜÅ©¸®Æ®±¸Á¶ (ö±Ù)ÄÜÅ©¸®Æ®ÁöºØ 13Ãþ °Ç¹°·Î¼,
¿Üº® : ¼®ÀçºÙÀÓ µî ¸¶°¨
âȣ : ¼¦½Ãâȣ µî ÀÔ´Ï´Ù.
[ÀÌ¿ë»óÅÂ]
°øºÎ»ó ¿ÀÇǽºÅÚÀÔ´Ï´Ù.
[¼³ºñ³»¿ª]
³¹æ¼³ºñ,À§»ý¼³ºñ,±Þ¹è¼ö¼³ºñ,½Â°±â¼³ºñ,ÁÖÂ÷Àå µîÀÌ µÇ¾îÀÖ½À´Ï´Ù.
[ÅäÁöÇü»ó/ÀÌ¿ë»óÅÂ]
2ÇÊ ÀÏ´ÜÀÇ ´ëü·Î·Î ¼¼ÀåÇüÀÇ ÅäÁö·Î¼, ¾÷¹«½Ã¼³ °ÇºÎÁö µîÀ¸·Î ÀÌ¿ë ÁßÀÔ´Ï´Ù.
7)ÀÎÁ¢ µµ·Î»óŵî
º»°Ç ¼Ãø, ³²Ãø, µ¿ÃøÀ¸·Î µµ·Î°¡ ¼ÒÀçÇÕ´Ï´Ù.
[ÅäÁöÀÌ¿ë°èȹ]
185-38 : ÀϹݻó¾÷Áö¿ª(2022-06-13) , ¹æÈÁö±¸,°¡Ãà»çÀ°Á¦Çѱ¸¿ª(ÀÎõ±¤¿ª½Ã ¹ÌÃßȦ±¸ °¡Ãà»çÀ°Á¦ÇÑ¿¡ °üÇÑ Á¶·Ê[2018. 7. 1.])£¼°¡ÃàºÐ´¢ÀÇ °ü¸® ¹× À̿뿡 °üÇÑ ¹ý·ü£¾, °ú¹Ð¾ïÁ¦±Ç¿ª£¼¼öµµ±ÇÁ¤ºñ°èȹ¹ý£¾
185-43 : ÀϹݻó¾÷Áö¿ª(2022-06-13) , ¹æÈÁö±¸,°¡Ãà»çÀ°Á¦Çѱ¸¿ª(ÀÎõ±¤¿ª½Ã ¹ÌÃßȦ±¸ °¡Ãà»çÀ°Á¦ÇÑ¿¡ °üÇÑ Á¶·Ê[2018. 7. 1.])£¼°¡ÃàºÐ´¢ÀÇ °ü¸® ¹× À̿뿡 °üÇÑ ¹ý·ü£¾, °ú¹Ð¾ïÁ¦±Ç¿ª£¼¼öµµ±ÇÁ¤ºñ°èȹ¹ý£¾ÀÔ´Ï´Ù.
[°øºÎ¿ÍÀÇ Â÷ÀÌ]
¾ø½À´Ï´Ù.
[Âü°í»çÇ×]
ÀÓ´ë°ü°è ¹Ì»óÀÔ´Ï´Ù. |
|
|
°ÇÃ๰ÇöȲ |
|
|
|
| ¼ÒÀçÁö |
ÀÎõ±¤¿ª½Ã ¹ÌÃßȦ±¸ ¼þÀǵ¿ 185-38¹øÁö |
| ´ëÁö¸éÀû |
341§³(103.33Æò) |
¿¬¸éÀû |
3104.56§³(940.78Æò) |
ÁÖ¿ëµµ |
¾÷¹«½Ã¼³ |
| °ÇÃà¸éÀû |
252.47§³(76.51Æò) |
¿ëÀû·ü»êÁ¤¿¬¸éÀû |
2838.87§³(860.26Æò) |
Âø°øÀÏÀÚ |
2016.07.11 |
| °ÇÆóÀ² |
74.04% |
¿ëÀû·ü |
832.51% |
»ç¿ë½ÂÀÎÀÏÀÚ |
2017.12.05 |
| Áö»óÃþ¼ö |
13Ãþ |
ÁöÇÏÃþ¼ö |
2Ãþ |
±¸Á¶ |
ö±ÙÄÜÅ©¸®Æ®±¸Á¶ |
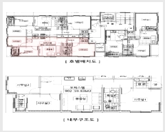
°ÇÃ๰Ãþº°ÇöȲ [º¸±â]| Ãþº° | ±¸Á¶ | ¿ëµµ | ¸éÀû | | 1Ãþ | ö±ÙÄÜÅ©¸®Æ®±¸Á¶ | °è´Ü½Ç,ELEV,ÁÖÂ÷Àå | 79.2§³ (24Æò) | | 2Ãþ | ö±ÙÄÜÅ©¸®Æ®±¸Á¶ | ¾÷¹«½Ã¼³(¿ÀÇǽºÅÚ:3È£) | 234.66§³ (71.11Æò) | | 3Ãþ | ö±ÙÄÜÅ©¸®Æ®±¸Á¶ | ¾÷¹«½Ã¼³(¿ÀÇǽºÅÚ:3È£) | 234.66§³ (71.11Æò) | | 4Ãþ | ö±ÙÄÜÅ©¸®Æ®±¸Á¶ | ¾÷¹«½Ã¼³(¿ÀÇǽºÅÚ:3È£) | 234.66§³ (71.11Æò) | | 5Ãþ | ö±ÙÄÜÅ©¸®Æ®±¸Á¶ | ¾÷¹«½Ã¼³(¿ÀÇǽºÅÚ:3È£) | 234.66§³ (71.11Æò) | | 6Ãþ | ö±ÙÄÜÅ©¸®Æ®±¸Á¶ | ¾÷¹«½Ã¼³(¿ÀÇǽºÅÚ:3È£) | 234.66§³ (71.11Æò) | | 7Ãþ | ö±ÙÄÜÅ©¸®Æ®±¸Á¶ | ¾÷¹«½Ã¼³(¿ÀÇǽºÅÚ:3È£) | 234.66§³ (71.11Æò) | | 8Ãþ | ö±ÙÄÜÅ©¸®Æ®±¸Á¶ | ¾÷¹«½Ã¼³(¿ÀÇǽºÅÚ:3È£) | 234.66§³ (71.11Æò) | | 9Ãþ | ö±ÙÄÜÅ©¸®Æ®±¸Á¶ | ¾÷¹«½Ã¼³(¿ÀÇǽºÅÚ:3È£) | 234.66§³ (71.11Æò) | | 10Ãþ | ö±ÙÄÜÅ©¸®Æ®±¸Á¶ | ¾÷¹«½Ã¼³(¿ÀÇǽºÅÚ:3È£) | 234.66§³ (71.11Æò) | | 11Ãþ | ö±ÙÄÜÅ©¸®Æ®±¸Á¶ | ¾÷¹«½Ã¼³(¿ÀÇǽºÅÚ:3È£) | 234.66§³ (71.11Æò) | | 12Ãþ | ö±ÙÄÜÅ©¸®Æ®±¸Á¶ | ¾÷¹«½Ã¼³(¿ÀÇǽºÅÚ:3È£) | 234.66§³ (71.11Æò) | | 13Ãþ | ö±ÙÄÜÅ©¸®Æ®±¸Á¶ | ¾÷¹«½Ã¼³(¿ÀÇǽºÅÚ:3È£) | 234.66§³ (71.11Æò) | | Áö1Ãþ | ö±ÙÄÜÅ©¸®Æ®±¸Á¶ | °è´Ü½Ç,¹ßÀü±â½Ç,ÆßÇÁ½Ç | 68.21§³ (20.67Æò) | | Áö2Ãþ | ö±ÙÄÜÅ©¸®Æ®±¸Á¶ | °è´Ü½Ç,MDF½Ç,ÁÖÂ÷Àå | 141.23§³ (42.8Æò) |
|
|
|
|
|
 |
ÀÓÂ÷³»¿ª |
[¹è´ç¿ä±¸Á¾±âÀÏ : 2025/09/15] |
|
|
| ÀÓÂ÷ÀÎ |
Á¡À¯°ü°è |
ÀüÀÔÀÏÀÚ |
È®Á¤ÀÏÀÚ |
¹è´ç¿ä±¸ÀÏ |
º¸Áõ±Ý/Â÷ÀÓ |
´ëÇ׿ä°Ç |
ºñ°í |
| ¸Å°¢±âÀÏ 7ÀÏÀü¿¡ ¸Å°¢¹°°Ç¸í¼¼¼°¡ °ø°íµÇ¿À´Ï È®ÀÎÇϽñ⠹ٶø´Ï´Ù. |
| ±èOO |
ÀüºÎ |
2022.07.07. |
2022.06.20. |
|
215,000,000
|
O |
|
| ÁÖOOOOOOOOOOOOOOOO |
ÀüºÎ |
2022.07.07. |
2022.06.20. |
2025.09.12. |
215,000,000
|
O |
2022.07.07.~2024.07.06. |
| ¸Å°¢¹°°Ç¸í¼¼ ºñ°í |
- ±è¿õÀÏ: ÁÖÅÃÀÓÂ÷±Çµî±â±Ç¸®Àڷμ ÁÖÅÃÀÓÂ÷±Çµî±âÀÏÀº 2024.08.20.ÀÓ
- ÁÖÅõµ½Ãº¸Áõ°ø»ç(ÀÓÂ÷ÀÎ: ±è¿õÀÏ): ÁÖÅÃÀÓÂ÷±ÇÀÇ ½Â°èÀÎÀÎ ÁÖÅõµ½Ãº¸Áõ°ø»ç·ÎºÎÅÍ ¿ì¼±º¯Á¦±Ç¸¸ ÁÖÀåÇÏ°í ´ëÇ×·ÂÀº Æ÷±âÇϸç
ÀÓ´ëÂ÷º¸Áõ±Ý Àü¾×À» º¯Á¦¹ÞÁö ¸øÇÏ´õ¶óµµ ¸Å¼öÀο¡ ´ëÇÑ ÀÜÁ¸ ÀÓ´ëÂ÷º¸Áõ±Ý ¹Ýȯû±¸±ÇÀ» Æ÷±âÇϰí ÀÓ´ëÂ÷µî±â¸¦ ¸»¼ÒÇÏ´Â
°Í¿¡ µ¿ÀÇÇÑ´Ù´Â È®¾à¼°¡ Á¦ÃâµÊ |
|
|
|
 |
¹ý¿ø ¹°°ÇÀÚ·á ¿ä¾à |
|
|
|
|
| ¼Ò¸êµÇÁö ¾Ê´Â µî±âºÎ±Ç¸® |
À»±¸ ¼øÀ§ 3¹ø ÁÖÅÃÀÓÂ÷±Çµî±â(´Ù¸¸ ÁÖÅõµ½Ãº¸Áõ°ø»çÀÇ ¸»¼Òµ¿ÀÇ È®¾à¼°¡ Á¦ÃâµÊ) |
| ¼³Á¤µÈ °ÍÀ¸·Î º¸´Â Áö»ó±Ç |
|
| ¹ý¿øÀÚ·á Æ¯ÀÌ»çÇ× |
|
| ¿©ÀÇÁÖ°æ¸Å Á¶¾ð ÇѸ¶µð |
ÀÌ ºÎµ¿»êÀÇ ÀÔÂû¹ý¿øÀº ÀÎõÁö¹æ¹ý¿øÀÔ´Ï´Ù.
ÀÔÂûÀÏÀº 2026-04-21ÀÔ´Ï´Ù.
ÀÔÂû½Ã°£Àº 10:20~11:20ÀÔ´Ï´Ù. ÀÌ ¹ý¿ø¿¡´Â KB±¹¹ÎÀºÇàÀÌ ÀÔÁ¡Çϰí ÀÖ½À´Ï´Ù.
|
¼±¼øÀ§ ÀÓÂ÷±Çµî±â°¡ µÇ¾î ÀÖ½À´Ï´Ù ´ëÇ×·ÂÀÌ ÀÖ´Â ¼±¼øÀ§ ÀÓÂ÷±Çµî±â ±Ç¸®ÀÚ°¡ ¹è´çÀ» Àü¾× ¹ÞÁö ¸øÇÒ °æ¿ì ³«ÂûÀÚ°¡ ÀÜ¿© º¸Áõ±ÝÀ» ÀμöÇØ¾ßÇÏ´Â °æ¿ìµµ ÀÖ½À´Ï´Ù. |
|
|
| Åë°è±â°£ |
³«Âû¹°°Ç¼ö |
Æò±Õ°¨Á¤°¡ |
Æò±Õ³«Âû°¡ |
³«Âû°¡À² |
À¯ÂûȽ¼ö |
| 3°³¿ù |
166°Ç |
200,883,434¿ø |
107,461,006¿ø |
53% |
2.5ȸ |
| 6°³¿ù |
420°Ç |
203,669,405¿ø |
122,044,469¿ø |
60% |
2.1ȸ |
| 12°³¿ù |
820°Ç |
205,383,561¿ø |
125,290,043¿ø |
61% |
2.2ȸ |
|
|
|
|
|
|
|
 |
ÀαÙÁö¿ª ÃÖ±Ù ³«Âû»ç·Ê
|
|
|
 |
|
|
[¾È³»] Ȥ½Ã ÀÌ¿ëÀÌ ºÒÆíÇϽðųª »èÁ¦ÇÒ ³»¿ëÀÌ ÀÖ´Ù¸é ÃÖ´ëÇÑ ³ë·ÂÇØ¼ °³¼±ÇØ ³ª°¡µµ·Ï ÇϰڽÀ´Ï´Ù.
 |
|
ÀÌ »çÀÌÆ®¿¡¼ Á¦°øµÇ´Â ºÎµ¿»ê°æ¸Å ÀÚ·á´Â ¹ý¿ø °æ¸Å°è¿¡¼ ó¸®Çϰí ÀÖ´Â ½ÇÁ¦ ¹°°ÇÀÇ Á¤º¸¿Í ÀÏÄ¡ÇÏÁö ¾ÊÀ» ¼öµµ ÀÖ½À´Ï´Ù.
´ç»ç´Â º» ÀÚ·á¿¡ °üÇÏ¿© Á¤½Ä ÄÁ¼³ÆÃ ÀÇ·Ú°¡ ¾Æ´Ñ ÀÌ»ó ¾î¶°ÇÑ º¸Áõµµ ÇÏÁö ¾ÊÀ¸¸ç ¹ýÀû Ã¥ÀÓÀ» ÁöÁö ¾Ê½À´Ï´Ù.
ÀÔÂûÇϱâ Àü¿¡ ²Ä²ÄÈ÷ ¹ý¿ø¿¡ ºñÄ¡µÈ ¸Å°¢¹°°Ç¸í¼¼¼ ¹× ±âŸ °øºÎ¸¦ ÀçÈ®ÀÎÇϽðí ÀÔÂû¿¡ Âü°¡ÇÏ½Ã±æ ¹Ù¶ø´Ï´Ù. |
|
|
|
|
|