|
|
|
| ¹°°ÇÁ¤º¸ Çٽɺ¸±â |
Ȩ > °æ¸ÅÁ¾ÇÕ°Ë»ö > ¹°°ÇÁ¤º¸ Çٽɺ¸±â |
|
|
| 2025Ÿ°æ52842 °æ¸Å»ç°ÇÀÇ ´Ù¼¼´ë(ºô¶ó) ¹°°Ç¿¡ °üÇÑ »ó¼¼ Á¤º¸ÀÔ´Ï´Ù. |
|
| ¼ÒÀçÁö |
°æ±âµµ ¾È»ê½Ã »ó·Ï±¸ À̵¿ 533-6 ÁöÃþºñ01È£
|
|
| »ç°Ç¹øÈ£ |
2025 Ÿ°æ 52842 |
¹°°Ç¹øÈ£ |
1
|
¹°°Ç¿ëµµ |
´Ù¼¼´ë(ºô¶ó) |
| °¨Á¤Æò°¡¾× |
85,000,000¿ø |
°æ¸Å´ë»ó |
ÅäÁö ¹× °Ç¹°Àϰý ¸Å°¢ |
ÁøÇà»óÅ |
ÀçÁøÇà |
| ÃÖÀúÀÔÂû°¡ |
(100%) 85,000,000¿ø
|
°Ç¹°¸éÀû |
66.38§³(20.08Æò) |
ÀÔÂû±âÀÏ |
2026.04.23(¸ñ) 10:30
(ÀÔÂû 13ÀÏÀü)
|
| ÀÔÂûº¸Áõ±Ý |
(10%) 8,500,000¿ø |
ÅäÁö¸éÀû |
31.14§³(9.42Æò)
|
À¯ÂûȽ¼ö |
0ȸ |
| ÀÔÂû¹ý¿ø |
¼ö¿øÁö¹æ¹ý¿ø ¾È»êÁö¿ø |
°æ¸Å¹æ¹ý |
ºÎµ¿»ê°Á¦°æ¸Å |
¹°°ÇÁ¶È¸¼ö |
¿À´Ã: 2ȸ [´©Àû: 30ȸ]
|
| ¸»¼Ò±âÁØ | |
|
|
|
|
|
|
|
|
|
|
°æ¸Å´ë»ó ¸ñ·Ï
|
|
| ±¸ºÐ |
¸ñ·Ï |
ÁÖ¼Ò |
±¸Á¶/¿ëµµ/´ëÁö±Ç |
ºñ°í |
´ëÁö±Ç
|
1 |
À̵¿ 533-6 |
258.1ºÐÀÇ 31.1376 |
31.1376§³ (9.42Æò)
|
°Ç¹°
|
1 |
À̵¿ 533-6 |
ÁöÃþºñ01È£ ö±ÙÄÜÅ©¸®Æ®Á¶ |
66.38§³ (20.08Æò)
|
|
|
|
2026-04-23
º¯°æ
|
(100%)
85,000,000¿ø
|
|
|
|
2026-04-23
ÁøÇà
|
(100%)
85,000,000¿ø
|
|
|
|
|
|
°¨Á¤Æò°¡¼ ¿ä¾à |
|
[À§Ä¡/ÁÖÀ§È¯°æ]
º»°ÇÀº °æ±âµµ ¾È»ê½Ã »ó·Ï±¸ À̵¿ ¼ÒÀç ""¾È»ê³ó¼ö»ê¹°µµ¸Å½ÃÀå"" ºÏµ¿Ãø Àαٿ¡ À§Ä¡Çϸç
ÁÖÀ§´Â ´Ù¼¼´ëÁÖÅÃ, ´Üµ¶ÁÖÅÃ, °ø¿ø ¹× ±Ù¸°»ýȰ½Ã¼³ µîÀÌ È¥ÀçÇÏ´Â ±âÁ¸ÁÖÅÃÁö´ë·Î Á¦¹Ý
ÁÖÀ§È¯°æÀº º¸ÅëÀÓ.
[±³Åë»óȲ]
º»°Ç ÁÖÅñîÁö Â÷·®ÃâÀÔ °¡´ÉÇϸç Àαٿ¡ ¹ö½ºÁ¤·ùÀå ¼ÒÀçÇÏ°í ±Ù°Å¸®¿¡ ÇÑ´ë¾Õ¿ªÀÌ ¼ÒÀçÇϴµî Á¦¹Ý ±³Åë¿©°ÇÀº º¸ÅëÀÓ.
[°Ç¹°±¸Á¶]
ö±ÙÄÜÅ©¸®Æ®Á¶ Æò½º¶óºêÁöºØ 4Ãþ°Ç³» ÁöÃþ ºñ01È£·Î¼
¿Üº® : ¸ôÅ»À§ ÆäÀÎÆÃ ¹× µå¶óÀ̺ñÆ® ¸¶°¨
³»º® : º®Áöµµ¹è ¹× ŸÀϺÙÀÓ ¸¶°¨µî
âȣ : ¼¦½Ã ÀÌÁßâȣÀÓ.
[ÀÌ¿ë»óÅÂ]
´Ù¼¼´ëÁÖÅÃ(ÈÄ÷ ³»ºÎ±¸Á¶µµ ÂüÁ¶)À¸·Î ÀÌ¿ëÁßÀÓ.
[¼³ºñ³»¿ª]
À§»ý¼³ºñ ¹× ±Þ¹è¼ö½Ã¼³µîÀÌ µÇ¾îÀÖÀ¸¸ç µµ½Ã°¡½º °³º°³¹æÀÓ.
[ÅäÁöÇü»ó/ÀÌ¿ë»óÅÂ]
Á¤¹æÇü ÅäÁö·Î¼ ´Ù¼¼´ëÁÖÅà °ÇºÎÁö·Î ÀÌ¿ëÁßÀÓ.
7)ÀÎÁ¢ µµ·Î»óŵî
ºÏµ¿ÃøÀ¸·Î Áß·Î¿Í Á¢ÇÔ.
[ÅäÁöÀÌ¿ë°èȹ]
µµ½ÃÁö¿ª, Á¦2Á¾ÀϹÝÁÖ°ÅÁö¿ª, ½Ã°¡Áö°æ°üÁö±¸(ÀϹÝ), Áß·Î2·ù(Æø15m~20m)(Áý»êµµ·Î)(Á¢ÇÕ),
°¡Ãà»çÀ°Á¦Çѱ¸¿ª£¼°¡ÃàºÐ´¢ÀÇ °ü¸® ¹× À̿뿡 °üÇÑ ¹ý·ü£¾, ´ë±â°ü¸®±Ç¿ª£¼´ë±â°ü¸®±Ç¿ªÀÇ
´ë±âȯ°æ°³¼±¿¡ °üÇÑ Æ¯º°¹ý£¾, µµ½Ã±³ÅëÁ¤ºñÁö¿ª£¼µµ½Ã±³ÅëÁ¤ºñÃËÁø¹ý£¾, »ýȰ¼ÒÀ½Áøµ¿°ü¸®
Áö¿ª£¼¼ÒÀ½Áøµ¿°ü¸®¹ý£¾, ¼ºÀå°ü¸®±Ç¿ª£¼¼öµµ±ÇÁ¤ºñ°èȹ¹ý£¾
[°øºÎ¿ÍÀÇ Â÷ÀÌ]
¾øÀ½.
[Âü°í»çÇ×]
ÀÓ´ë°ü°è ¹Ì»óÀÓ. |
|
|
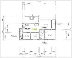
°ÇÃ๰ÇöȲ |
|
|
|
| ¼ÒÀçÁö |
°æ±âµµ ¾È»ê½Ã »ó·Ï±¸ À̵¿ 533-6¹øÁö |
| ´ëÁö¸éÀû |
258.1§³(78.21Æò) |
¿¬¸éÀû |
653.67§³(198.08Æò) |
ÁÖ¿ëµµ |
°øµ¿ÁÖÅà |
| °ÇÃà¸éÀû |
144.99§³(43.94Æò) |
¿ëÀû·ü»êÁ¤¿¬¸éÀû |
574.81§³(174.18Æò) |
Âø°øÀÏÀÚ |
2001.08.06 |
| °ÇÆóÀ² |
58.11% |
¿ëÀû·ü |
222.71% |
»ç¿ë½ÂÀÎÀÏÀÚ |
2002.11.30 |
| Áö»óÃþ¼ö |
4Ãþ |
ÁöÇÏÃþ¼ö |
1Ãþ |
±¸Á¶ |
ö±ÙÄÜÅ©¸®Æ®±¸Á¶ |
°ÇÃ๰Ãþº°ÇöȲ [º¸±â]| Ãþº° | ±¸Á¶ | ¿ëµµ | ¸éÀû | | 1Ãþ | ö±ÙÄÜÅ©¸®Æ®Á¶ | ´Ù¼¼´ëÁÖÅÃ(2¼¼´ë) | 140.08§³ (42.45Æò) | | 2Ãþ | ö±ÙÄÜÅ©¸®Æ®Á¶ | ´Ù¼¼´ëÁÖÅÃ(2¼¼´ë) | 144.91§³ (43.91Æò) | | 3Ãþ | ö±ÙÄÜÅ©¸®Æ®Á¶ | ´Ù¼¼´ëÁÖÅÃ(2¼¼´ë) | 144.91§³ (43.91Æò) | | 4Ãþ | ö±ÙÄÜÅ©¸®Æ®Á¶ | ´Ù¼¼´ëÁÖÅÃ(2¼¼´ë) | 144.91§³ (43.91Æò) | | Áö1 | ö±ÙÄÜÅ©¸®Æ®Á¶ | ´Ù¼¼´ëÁÖÅÃ(1¼¼´ë) | 78.86§³ (23.9Æò) |
|
|
|
|
|
 |
ÀÓÂ÷³»¿ª |
[¹è´ç¿ä±¸Á¾±âÀÏ : 2025/10/10] |
|
|
| ÀÓÂ÷ÀÎ |
Á¡À¯°ü°è |
ÀüÀÔÀÏÀÚ |
È®Á¤ÀÏÀÚ |
¹è´ç¿ä±¸ÀÏ |
º¸Áõ±Ý/Â÷ÀÓ |
´ëÇ׿ä°Ç |
ºñ°í |
| Á¶»çµÈ ÀÓÂ÷³»¿ªÀÌ ¾ø½À´Ï´Ù. |
|
|
|
 |
¹ý¿ø ¹°°ÇÀÚ·á ¿ä¾à |
|
|
|
|
| ¼Ò¸êµÇÁö ¾Ê´Â µî±âºÎ±Ç¸® |
|
| ¼³Á¤µÈ °ÍÀ¸·Î º¸´Â Áö»ó±Ç |
|
| ¹ý¿øÀÚ·á Æ¯ÀÌ»çÇ× |
|
| ¿©ÀÇÁÖ°æ¸Å Á¶¾ð ÇѸ¶µð |
ÀÌ ºÎµ¿»êÀÇ ÀÔÂû¹ý¿øÀº ¼ö¿øÁö¹æ¹ý¿ø ¾È»êÁö¿øÀÔ´Ï´Ù.
ÀÔÂûÀÏÀº 2026-04-23ÀÔ´Ï´Ù.
ÀÔÂû½Ã°£Àº 10:00~11:00ÀÔ´Ï´Ù. ÀÌ ¹ý¿ø¿¡´Â ½ÅÇÑÀºÇàÀÌ ÀÔÁ¡Çϰí ÀÖ½À´Ï´Ù.
|
¼±¼øÀ§ ÀÓÂ÷±Çµî±â°¡ µÇ¾î ÀÖ½À´Ï´Ù ´ëÇ×·ÂÀÌ ÀÖ´Â ¼±¼øÀ§ ÀÓÂ÷±Çµî±â ±Ç¸®ÀÚ°¡ ¹è´çÀ» Àü¾× ¹ÞÁö ¸øÇÒ °æ¿ì ³«ÂûÀÚ°¡ ÀÜ¿© º¸Áõ±ÝÀ» ÀμöÇØ¾ßÇÏ´Â °æ¿ìµµ ÀÖ½À´Ï´Ù. |
|
|
| Åë°è±â°£ |
³«Âû¹°°Ç¼ö |
Æò±Õ°¨Á¤°¡ |
Æò±Õ³«Âû°¡ |
³«Âû°¡À² |
À¯ÂûȽ¼ö |
| 3°³¿ù |
42°Ç |
156,415,238¿ø |
91,706,211¿ø |
59% |
3.5ȸ |
| 6°³¿ù |
70°Ç |
159,720,571¿ø |
99,511,698¿ø |
63% |
3.5ȸ |
| 12°³¿ù |
142°Ç |
156,751,158¿ø |
98,178,708¿ø |
63% |
3.1ȸ |
|
|
|
|
|
|
|
 |
ÀαÙÁö¿ª ÃÖ±Ù ³«Âû»ç·Ê
|
|
|
 |
|
|
[¾È³»] Ȥ½Ã ÀÌ¿ëÀÌ ºÒÆíÇϽðųª »èÁ¦ÇÒ ³»¿ëÀÌ ÀÖ´Ù¸é ÃÖ´ëÇÑ ³ë·ÂÇØ¼ °³¼±ÇØ ³ª°¡µµ·Ï ÇϰڽÀ´Ï´Ù.
 |
|
ÀÌ »çÀÌÆ®¿¡¼ Á¦°øµÇ´Â ºÎµ¿»ê°æ¸Å ÀÚ·á´Â ¹ý¿ø °æ¸Å°è¿¡¼ ó¸®Çϰí ÀÖ´Â ½ÇÁ¦ ¹°°ÇÀÇ Á¤º¸¿Í ÀÏÄ¡ÇÏÁö ¾ÊÀ» ¼öµµ ÀÖ½À´Ï´Ù.
´ç»ç´Â º» ÀÚ·á¿¡ °üÇÏ¿© Á¤½Ä ÄÁ¼³ÆÃ ÀÇ·Ú°¡ ¾Æ´Ñ ÀÌ»ó ¾î¶°ÇÑ º¸Áõµµ ÇÏÁö ¾ÊÀ¸¸ç ¹ýÀû Ã¥ÀÓÀ» ÁöÁö ¾Ê½À´Ï´Ù.
ÀÔÂûÇϱâ Àü¿¡ ²Ä²ÄÈ÷ ¹ý¿ø¿¡ ºñÄ¡µÈ ¸Å°¢¹°°Ç¸í¼¼¼ ¹× ±âŸ °øºÎ¸¦ ÀçÈ®ÀÎÇϽðí ÀÔÂû¿¡ Âü°¡ÇÏ½Ã±æ ¹Ù¶ø´Ï´Ù. |
|
|
|
|
|